62.CUBO
Cuartel de Bomberos Brigada Metrenco, PLCPadre las Casas, Temuco
Sin mención
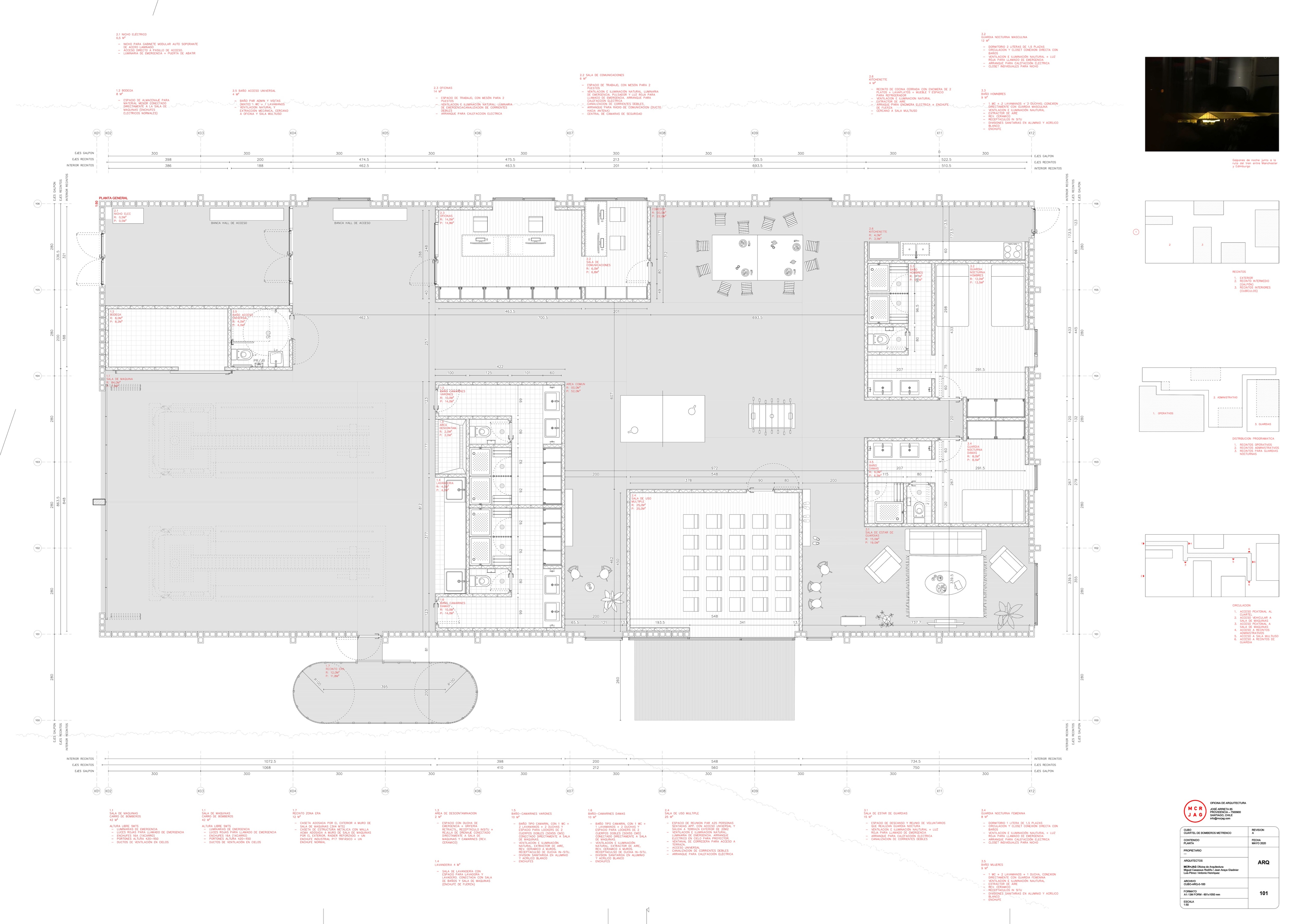
Como premisa inicial para el proyecto, se propone el desarrollo de un 50% más de espacio, que el indicado por el encargo.
Esta definición, que supone superar el mínimo como estándar para el uso del edificio, apunta a entregar una mayor libertad al desarrollo de las actividades y a permitir la aparición de otras que, por no haber exisitido las condicines, no se hayan pensado antes que pudiesen darse. Para lograr este fin el edificio se ha formulado bajo una estructura de galpón.
Que este tipo de estructuras acompañe todo el imaginario del paisaje rutero no es casualidad. Son el resultado de un ejercicio simple de rendimiento: son cuerpos que maximizan el aire atrapado mediante la ejecución de la estructura más económica que ha sido posible proyectar.
Esta definición, que supone superar el mínimo como estándar para el uso del edificio, apunta a entregar una mayor libertad al desarrollo de las actividades y a permitir la aparición de otras que, por no haber exisitido las condicines, no se hayan pensado antes que pudiesen darse. Para lograr este fin el edificio se ha formulado bajo una estructura de galpón.
Que este tipo de estructuras acompañe todo el imaginario del paisaje rutero no es casualidad. Son el resultado de un ejercicio simple de rendimiento: son cuerpos que maximizan el aire atrapado mediante la ejecución de la estructura más económica que ha sido posible proyectar.
En términos ambientales, para lograr un estándar térmico mínimo, hemos vestido el galpón como si de un invernadero se tratase, de forma de que el crecimiento propuesto sea sustentable climáticamente. Esta condición permite al mismo tiempo cualificar el lugar, el cual hemos tratado bajo la forma de un patio interior.
uedan definidos así dos estándares de confort térmico: uno medio para las áreas comunes y de ocupación temporal, que le es común a todo el galpón invernadero, y otro alto para las áreas privadas y de ocupación prolongada, generados como unidades al interior del mismo.
Desarrollar este espacio interior de mayor superficie no sólo permite dar mejor cabida a las actividades, sino que que prolongar la vida útil del cuartel al dejar aún lugar para satisfacer las necesidades que en el tiempo puedan aparecer.
uedan definidos así dos estándares de confort térmico: uno medio para las áreas comunes y de ocupación temporal, que le es común a todo el galpón invernadero, y otro alto para las áreas privadas y de ocupación prolongada, generados como unidades al interior del mismo.
Desarrollar este espacio interior de mayor superficie no sólo permite dar mejor cabida a las actividades, sino que que prolongar la vida útil del cuartel al dejar aún lugar para satisfacer las necesidades que en el tiempo puedan aparecer.
Colaboradores : Luis Pérez Huenupi, Antonio Henríquez
Año de Proyecto : 2020
Superficie de Terreno : 3.000 m2
Superficie de Proyecto : 433 m2
Año de Proyecto : 2020
Superficie de Terreno : 3.000 m2
Superficie de Proyecto : 433 m2









